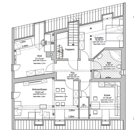
Wohnung im Dachgeschoss
110,35 Quadratmeter (DIN)
3 Zimmer Küche Bad
Technische Ausstattung
-
Schnelles Internet mit Unity Media/Vodafone
-
Neue Gas-Brennwertheizung Baujahr 2020
-
Genügend Steckdosen in allen Räumen
-
neue Designböden in der gesamten Wohnung (verlegt 2021)
-
Wände und Decken neu gestrichen in 2021
Wohnkomfort
-
Dachgeschoss des Fachwerkhauses ausgebaut in 1992
-
Neue französische Balkone in Wohnzimmer und Schlafzimmer im Jahr 2020
-
Gute klimatische Bedingungen durch Lehmfachwerk und zus. Innendämmung der Aussenwände
-
Großes Bad mit Badewanne und separater Dusche
Weitere Highlights
-
großzügige Räume
-
Viel Licht durch Gauben
-
Wenig Raumverlust der Dachschrägen durch hohen Drempel
-
Freiliegende Balken zeigen den urspr. Charakter des Gebäudes ohne den Wohnkomfort zu reduzieren
-
Küche mit separater Speisekammer für Vorräte
-
Hochwertige Einbauküche mit Markengeräten von Bosch

Kosten
-
715 Euro Kaltmiete pro Monat
-
zzgl. 50 Euro mtl. für die Einbauküche
-
optional: Stellplatz (25 Euro) oder Garage (60 Euro)
-
Mietkaution 1.980 Euro
-
Nebenkostenabschlag zunächst 150 Euro monatlich, jährliche Anpassung
-
Faire Nebenkosten-Abrechnung durch Dienstleister und moderne Messtechnik
Weitere Informationen
-
Bei Interesse sind folgende Unterlagen einzureichen
-
VOR Besichtigung:
-
VOR Vertragsentwurf:
-
Gehaltsnachweis und Nachweis über unbefristetes Arbeitsverhältnis
-
Mietschuldenfreiheits-Bescheinigung (Muster immowelt)
vom bisherigen Vermieter -
Personalausweis
-














